Leased

BRAND NEW APARTMENT IN THE HEART OF BEAUFORT...

These brand new apartments are perfectly located on the corner of Harold and Stirling Streets in Highgate - right in the heart of the Beaufort Street buzzing cafe strip! Only 2 kms from the Perth CBD! You have the options of sporting activities, boutique shopping, catching up with friends at one of the many cafes, wine bars or pubs.

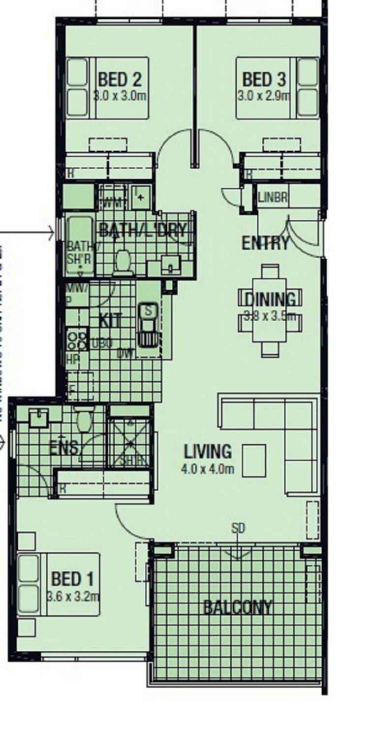
This apartment is a rare find being a 3 bedroom 2 bathroom spacious apartment with luxury fitouts. High quality carpets in the bedrooms and a beautiful balcony right outside the main bedroom, located on the THIRD FLOOR in BUILDING 2. Also included with this property is a storeroom located right next to your TWO UNDERGROUND SECURE PARKING CARBAYS.

PLEASE NOTE THE WINDOW TREATMENTS ARE CURRENTLY BEING FITTED - PHOTOS TO FOLLOW

The St Marks complex has been fit out with remote controlled security gates, security camera surveillance system and keyless electronic entry to the ground floor lobbies which is all integrated with the car park remote control.

State of the art facilities include a 21 metre solar heated lap pool with pool side lounges and chairs, you can even have a game of pool in the air conditioned pool lounge room, there's also a bar and games room.

No need to pay for a gym membership either as there is a fully equipped gym, with a shower and a Swedish style sauna.

Please advise Jessica at jessica@urbanwa.com.au if you will be attending the viewing so no one is left behind locked out of the complex.

****PLEASE NOTE URBAN WA DOES NOT ACCEPT ONLINE APPLICATIONS, YOU MUST VIEW THIS PROPERTY TO APPLY****

Features

Outdoor entertainment area Bar in-Ground Pool Inside Spa Sauna Gym Balcony
3 2 2
Available Leased
Address 88, 131 Harold Street, Highgate
Price $600 per week
Property Type Rental
Property ID 1261
Category House

Agent Details

Robyn Horsman photo

Robyn Horsman

08 9206 1600
View Profile